News

Novartis project approved

Toshiko Mori to design 22 Windsor Street building

4498 novartis 2
Design for 181 Mass. Ave., by architect Maya Lin. It features translucent glass behind granite blocks with open gaps.
Novartis Institutes for Biomedical Research
4500 novartis 1
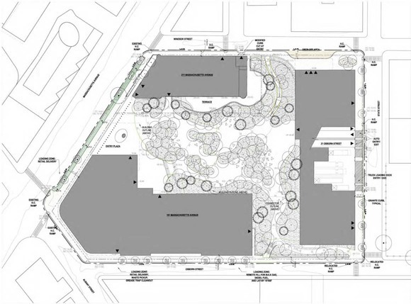
Layout of the new Novartis campus east of Massachusetts Avenue, also bounded by Albany, Osborn, State, and Windsor Streets. The campus features a large green courtyard that will be publicly accessible — at least during business hours.
Novartis Institutes for Biomedical Research
4501 novartis 0
Architect Toshiko Mori presents her design for 22 Windsor Street to the Cambridge Planning Board. It is the second new building within Novartis’ new campus on the east side of Massachusetts Avenue.
John A. Hawkinson—The Tech
4502 novartis
Design for 22 Windsor Street, by architect Toshiko Mori. It is characterized by five mini-atriums connected by diagonal staircases on the transparent south facade.
Novartis Institutes for Biomedical Research

On Wednesday evening, Novartis announced Toshiko Mori as the second architect for its extended Cambridge campus and received approval to proceed with excavation contingent upon careful review of the public access to its courtyard.

Novartis presented its case to the Cambridge Planning Board, as part of a required zoning review stemming from a special zoning district approved for Novartis earlier this year. The new campus is on the site of the former Analog Devices building, which was finally demolished this week.

Toshiko Mori will design 22 Windsor Street, on the corner of State and Windsor Streets. She joins Maya Lin, who is designing 181 Massachusetts Avenue, on the corners of Mass. Ave, Albany Street, and Osborne Street. Lin designed the Vietnam Veterans Memorial in Washington DC.

The campus includes those two new buildings, as well as the existing 211 Mass Ave building (MIT Building N42), whose exterior will not change. Smart Street, which separates N42 from the Analog Devices lot, will be removed.

In a two-hour session before the planning board, Lin and Mori presented their vision for the site. The board heard from Cambridge’s Community Development department and one member of the public, and discussed its concerns with the project.

Lin’s building features a “porous stone screen” of local granite that will “glow at night,” Lin said. The building is not transparent, Lin said, but instead is translucent with fritted glass.

There will be first-floor retail all along Windsor and Albany.

Mori described 22 Windsor’s main aspect as a south facade with a sequence of five “mini-atriums” with balconies. The south facade is the most transparent, Mori said, with the east and west facades being translucent.

The buildings are connected by a bridge on the 6th floor.

The board unanimously approved the excavation permit, according to Jeff Lockwood, spokesman for the Novartis Institutes for Biomedical Research. Lockwood said he hopes to begin construction very early next year.

Much of the board’s questioning focused on the large green courtyard between the three buildings. Novartis proposal says, “The centerpiece of the campus is a publicly accessible open space that will serve as a pedestrian connection between Kendall and Central Squares during business hours while also being integral and vital to the design of the complex. This urban scaled courtyard will also be an inspiration to the scientists working in the spaces around it.”

The current Novartis campus, on the west side of Mass Ave, has a public-access courtyard, but, as the board noted, it is not inviting. Its steel gates are closed outside of business hours, and it does not appear to draw visitors. The board also discussed the failure of the University Park project (on Sidney Street, to the north and west of Novartis and Star Market) to produce open space that is effectively used by the public.

Cambridge attorney James Rafferty, representing Novartis, noted that the project team was still working out how to deal with restricting access to the courtyard, and that the project was not expected to open until February 2015.

“Is it a park? Is it a big corporate front yard?” asked William Tibbs, a member of the board. “The idea of it having limited control with the kind of openness that you’re showing here is mind-boggling to me,” he said

The board also expressed concerns about pedestrian traffic crossing Mass Ave mid-block between the two campuses, because the campuses on both sides of Mass Ave have main entrances in the middle of the block, quite some distance from the nearest pedestrian crossing.